Property Features
- Lounge 18'10 x 11'8
- Kitchen/Diner 22'6 x 9'8
- 3 Bedrooms
- Shower Room
- Garden to Rear
- Attached Garage
- No Onward Chain
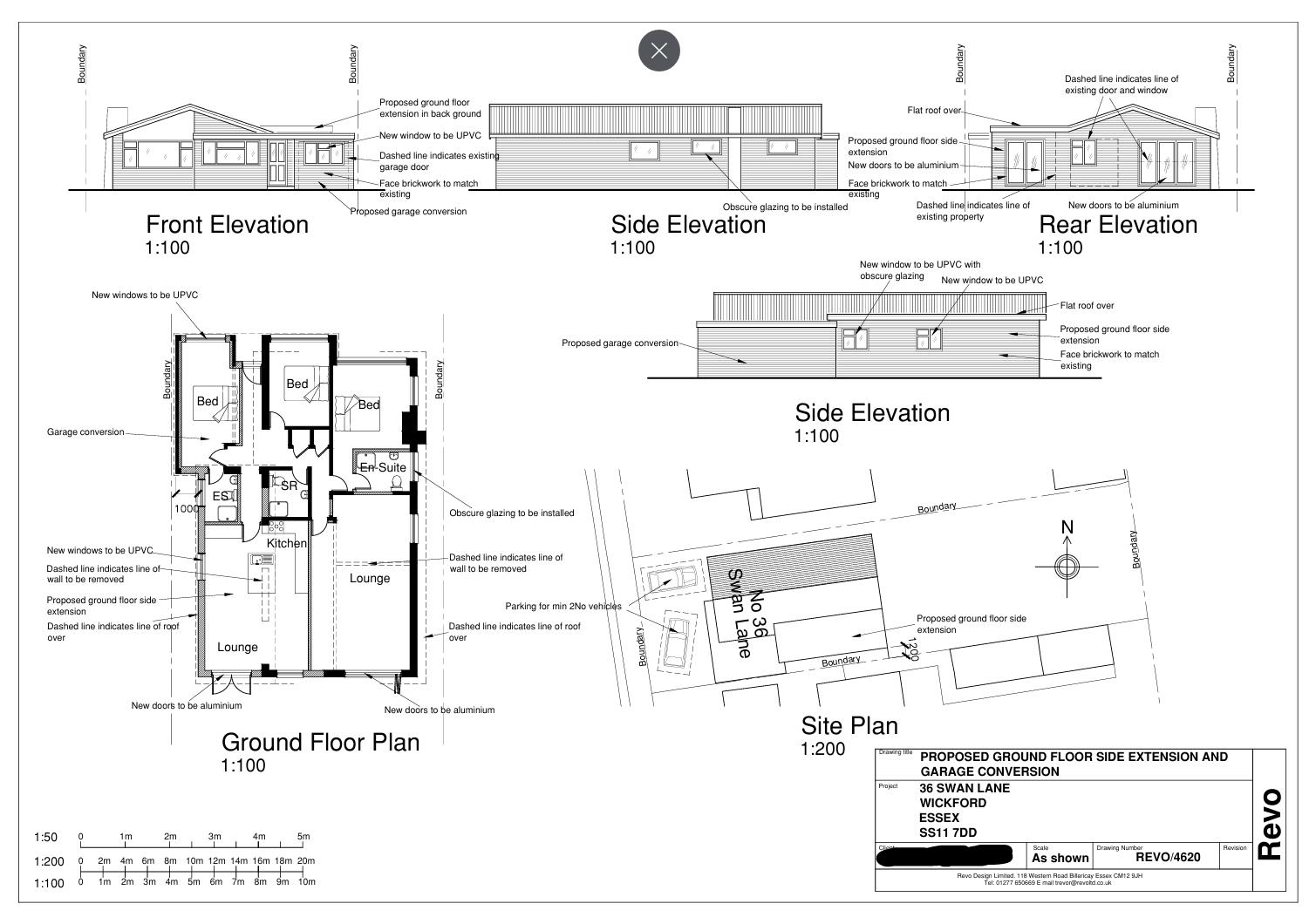
- Planning to Convert Garage & Extend
Property Summary
Full Details
Part glazed door to:
ENTRANCE PORCH
Tiling to floor. Double glazed opaque door to:
ENTRANCE HALL
Double glazed opaque door to rear garden. Cloaks cupboard. Radiator (untested).
BEDROOM 3.81m x 2.74m (12'6 x 9')
Double glazed window to front. Radiator (untested). Coved ceiling. Airing cupboard.
SHOWER ROOM
Double glazed opaque window to side. Suite comprising of low level WC, vanity wash hand basin and shower cubicle. Tiled surround. Radiator/rail (untested).
LOUNGE 5.74m x 3.56m (18'10 x 11'8)
Two double glazed windows to front. Double glazed window to side. Two radiators (untested). Fireplace. Coved ceiling.
BEDROOM 3.35m x 3.05m (11' x 10)
Double glazed window to side. Radiator (untested).
KITCHEN/DINER 6.86m x 2.95m (22'6 x 9'8)
Two double glazed windows to side. Double glazed French doors to rear garden. Range of base and wall mounted units providing drawer and cupboard space with work top surface extending to incorporate inset sink unit. Recess for washing machine, dishwasher and fridge freezer. Built in oven, microwave and hob with extractor fan above (all untested). Tiling to floor and surround. Radiator (untested). Coved ceiling.
BEDROOM 4.72m x 3.35m (15'6 x 11')
Double glazed window to rear. Radiator (untested). Coved ceiling.
REAR GARDEN
Commencing with paved patio to immediate rear with remainder laid to lawn. Fencing to side boundary and brick wall to rear boundary backing cricket pitch. Patio garden to side. Double doors to:
ATTACHED GARAGE
Driveway to front providing off street parking.







































