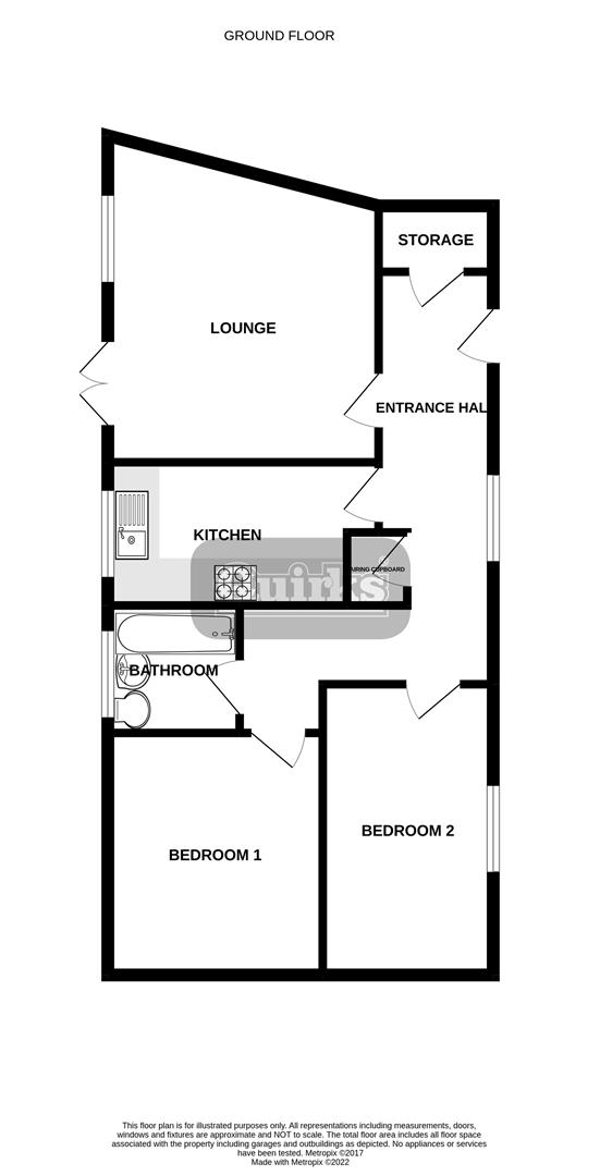
Property Features
- Spacious Entrance Hall 19'4 x 5'2
- Lounge 15' x 13'2
- Refitted Kitchen 12'5 x 6'8
- Bedroom 1 10'2 x 11'6
- Bedroom 2 13'8 x 7'6
- Updated Bathroom
- 2 Allocated Parking Space
- Communal Gardens
Property Summary
Full Details
ENTRANCE DOOR
Leading to:
COMMUNAL HALL
Personal door to:
SPACIOUS ENTRANCE HALL 5.89m x 1.57m (19'4 x 5'2)
Built in storage cupboard. Airing cupboard housing updated boiler and space for tumble dryer.. Double glazed window to front. Radiator in casement surround. Laminate finish to floor extending to:
LOUNGE 4.57m x 4.01m (15' x 13'2)
Double glazed French doors and double glazed windows to front.
RECENTLY REFITTED KITCHEN 3.78m x 2.03m (12'5 x 6'8)
Double glazed window to front. Radiator in casement surround. Range of recently refitted base and wall mounted units providing drawer and cupboard space with work top surface extending to incorporate inset sink unit. Space for fridge freezer and washing machine. Built in oven, hob and extractor fan. Tiled surround.
BEDROOM ONE 3.51m x 3.10m (11'6 x 10'2)
Double glazed window to front. Radiator in casement surround.
BEDROOM TWO 4.17m x 2.29m (13'8 x 7'6)
Double glazed window to front. Radiator in casement surround.
UPDATED BATHROOM 1.96m x 1.83m (6'5 x 6')
Double glazed opaque window to front. Updated suite comprising of low level WC, pedestal wash hand basin and panel enclosed bath unit with shower and screen. Extensive tiling to walls and floor. Radiator/rail.
BIN STORE
TWO ALLOCATED PARKING SPACE
The property benefits from 2 allocated parking spaces.
COMMUNAL GARDENS
The property benefits from communal gardens. Bike shelter.
LEASE INFORMATION
150 YEARS FROM 2006 APPROX. 133 YEARS REMAINING
SERVICE CHARGE £1,500 PER ANNUM,
GROUND RENT £168 PER ANNUM .
REVIEW PERIOD:
DISCLAIMER
PLEASE NOTE - any appliances, fixtures, fittings or heating systems have not been tested by the agent as we are not qualified to do so. We have relied on information supplied by the seller to prepare these details. Interested applicants are advised to make their own enquiries about the functionality.



















