Property Features
- FOUR BEDROOMS
- EN-SUITE, BATHROOM & W.C
- INTEGRAL GARAGE
- MODERN KITCHEN / BREAKFAST ROOM
- LIVING ROOM & DINING ROOM
- FAMILY / PLAYROOM WITH BI-FOLD DOORS
- SOUTH FACING REAR GARDEN
- NEARBY NATURE RESERVE
- CLOSE TO SHOPS AND SCHOOLS
- IMMACULATELY PRESENTED
Property Summary
Full Details
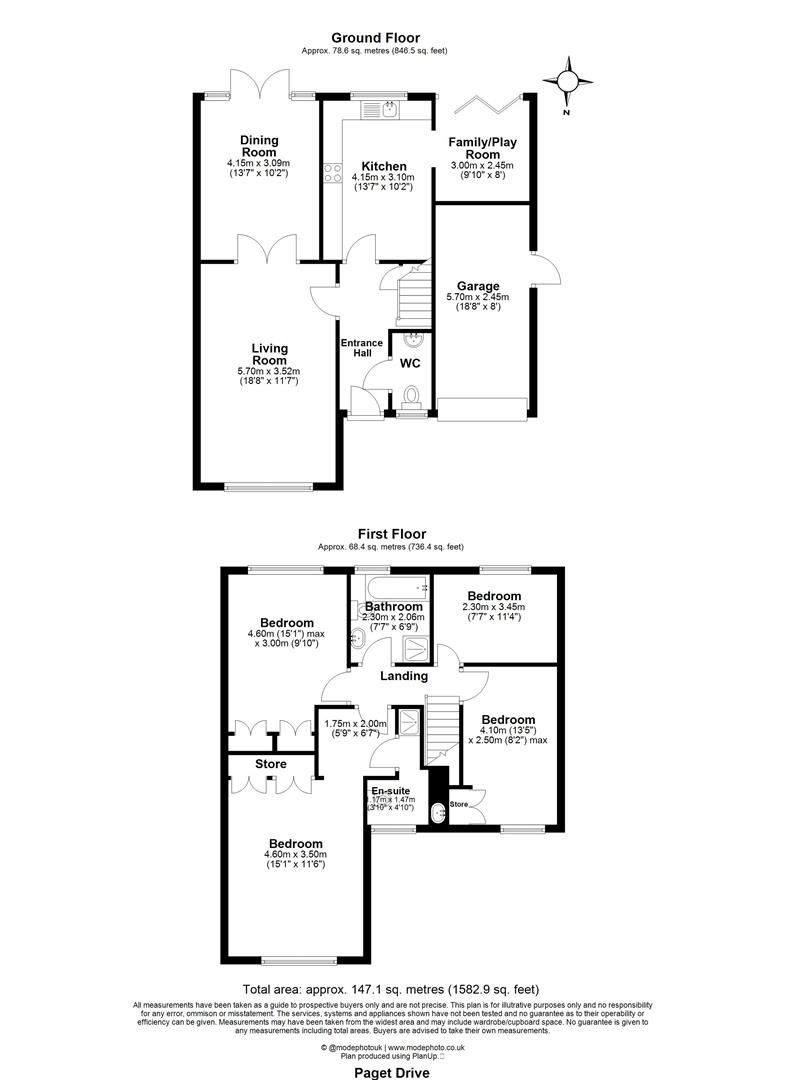
Purchased new from Bovis Homes and staying in the same family ownership for approximately 40 years, is this immaculately presented four bedroom detached house, situated in a quiet turning in the Queens Park area, near to schools, Stock Brook Manor Country Club, convenience shops including new Aldi Supermarket and also adjacent to the Queens Park Nature Reserve. Occupying a South facing plot, with landscaped front and rear gardens, a large independent driveway, there is plenty of parking available, in addition to the integral garage for storage. You are immediately greeted by the spacious entrance hallway with oak balustrading to the staircase, also with under-stairs storage, there is engineered wood flooring which continues into the living space, the ground floor W.C, was recently refitted in 2024, at the same time as the family bathroom. There are three reception rooms, including an 18'8 x 11'7 living room with feature fireplace, dining room with French doors to the rear garden and family / playroom with bi-folding doors, providing plenty of natural light from the South facing patio area. The kitchen / breakfast room has also been updated with a modern range of wall and base level shaker style units, with integrated dishwasher, washing machine, sink/drainer and spaces for American style fridge / freezer and range style cooker, with fitted extractor hood, breakfast bar and Amtico flooring. There is a recently installed Vaillant gas boiler, with approximately 8 years remaining on the warranty for peace of mind. The first floor landing has oak internal doors leading to all rooms, including the modern and recently updated family bathroom, with both a large walk-in shower, with rainfall shower head and separate paneled bath, vanity unit wash hand basin and low level W.C. There are four sizeable bedrooms, three of bedrooms have built-in wardrobe space and can comfortably accommodate double beds. Bedroom one is an impressive room, measuring 15' x 11'6 with fully tiled en-suite shower room, including shower cubicle, vanity unity wash hand basin and low level W.C, chrome heated towel rail. The well cared for rear garden enjoys a sunny aspect with an extensive sandstone paved patio, beautifully kept lawn and flower beds, with a pergola adjoining the house. There is side gate access and covered sideway for outdoor furniture or BBQ's. To the rear boundary is hard standing, creating a private seating area, or base for a shed if required. Billericay Mainline Station is approximately a 25 minute walk from this property, with the train line serving London Liverpool street in 35 minutes.
ENTRANCE HALLWAY 3.86m x 2.62m reducing to 1.24m (12'8 x 8'7 reduci
GROUND FLOOR W.C
LIVING ROOM 5.69m x 3.53m (18'8 x 11'7)
DINING ROOM 4.14m x 3.10m (13'7 x 10'2)
KITCHEN / BREAKFAST ROOM 4.14m x 3.10m (13'7 x 10'2)
FAMILY ROOM / PLAYROOM 3.00m x 2.44m (9'10 x 8)
INTEGRAL GARAGE 5.69m x 2.44m (18'8 x 8)
FIRST FLOOR LANDING
BEDROOM ONE 4.60m x 3.51m (15'1 x 11'6)
EN-SUITE SHOWER ROOM
BEDROOM TWO 4.60m max x 3.00m (15'1 max x 9'10)
BEDROOM THREE 4.09m x 2.49m max (13'5 x 8'2 max)
BEDROOM FOUR 3.45m x 2.31m (11'4 x 7'7)
REFITTED FAMILY BATHROOM
SOUTH FACING REAR GARDEN 13.72m x 10.67m (45 x 35)
INDEPENDENT BLOCK PAVED DRIVEWAY





















































