Property Features
- 3 BEDROOMS
- BATHROOM & SEPARATE W.C.
- LOUNGE
- KITCHEN/DINER
- GARAGE WITH OWN DRIVEWAY
- SOME MODERNISATION REQUIRED
- NO ONWARD CHAIN
- CLOSE TO TOWN & SCHOOL
Property Summary
Full Details
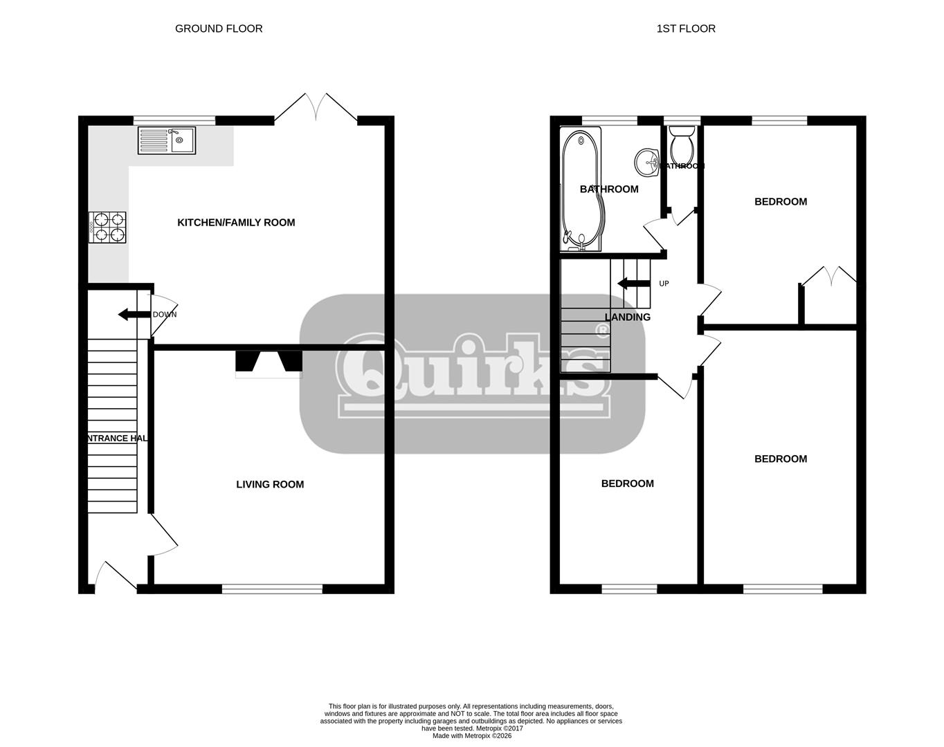
ENTRANCE HALL
Double glazed door to front. Double radiator. Under stairs cupboard.
LOUNGE 4.37m x 3.66m (14'4 x 12')
Double glazed to front. Double radiator. Coving to ceiling.
KITCHEN/DINER 6.30m x 3.15m (max) (20'8 x 10'4 (max))
Double glazed window and French Doors to rear garden. Radiator. Range of base and wall units providing drawer and cupboard space. Recess and space for washing machine and fridge/freezer. Built in oven and hob with extractor above.
FIRST FLOOR LANDING
Double glazed window to side and access to loft.
BEDROOM 1 3.58m x 3.40m (11'9 x 11'2)
Double glazed window to front. Radiator.
BEDROOM 2 3.40m x 3.10m (max) (11'2 x 10'2 (max))
Double glazed window to rear. Radiator. Built-in cupboard.
BEDROOM 3 2.74m x 2.64m (9' x 8'8)
Double glazed window to front. Radiator. Over stairs shelf.
BATHROOM
Double glazed window to rear. Bath unit and wash hand basin. Tiled surround. Radiator.
SEPARATE W.C.
Double glazed to rear. Low level W.C.
REAR GARDEN
Paved patio and lawn. Access to side and courtesy door to:
GARAGE WITH OWN DRIVE
Brick built with up and over door.
NO ONWARD CHAIN
DISCLAIMER
PLEASE NOTE - any appliances, fixtures, fittings or heating systems have not been tested by the agent as we are not qualified to do so. We have relied on information supplied by the seller to prepare these details. Interested applicants are advised to make their own enquiries about the functionality.



























