Property Features
- PLANNING FOR 3 BED DETACHED BUNGALOW
- SEMI-RURAL LOCATION
- OPEN ASPECT TO REAR
- SOUTHERLY REAR GARDEN
- WALKING DISTANCE OF LOCAL SHOP
- EASY ACCESS OF BILLERICAY AND WICKFORD
- PLANNING 23/01099/FULL
- SOIL TEST RESULTS BY SEP NEGOTIATION
- FINAL STRUCTURAL PLAN BY SEP NEGOTIATION
Property Summary
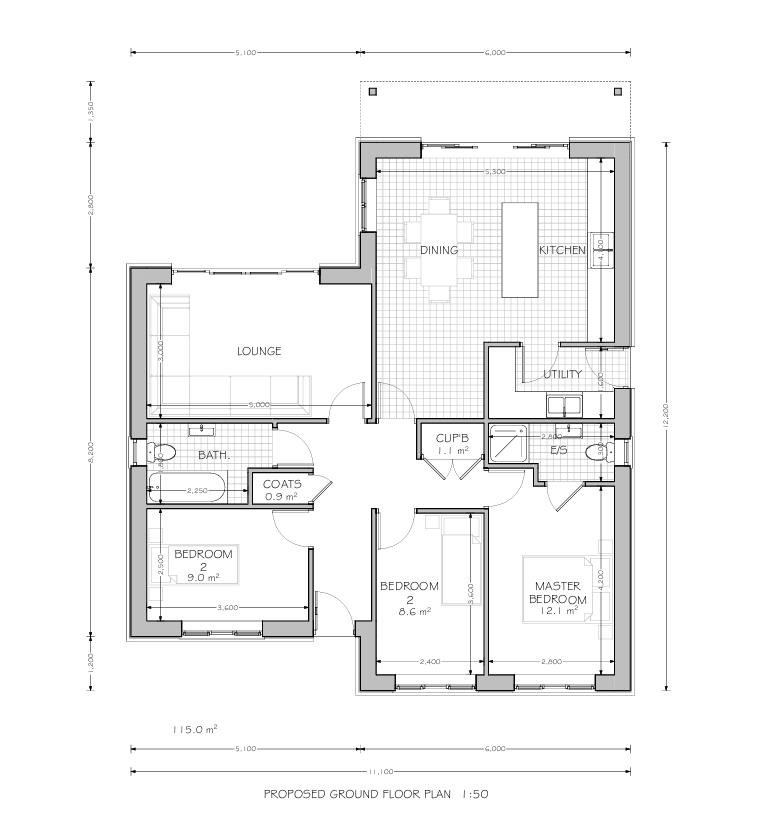
DEVELOPMENT OPPORTUNITY IN CRAYS HILL, PLANNING PASSED FOR A 3 BEDROOM DETACHED BUNALOW IN SEMI-RURAL LOCATION CLOSE TO LOCAL SHOPS AND EASY ACCESS OF BOTH WICKFORD AND BILLERICAY TOWN CENTRES, SOUTH/WESTERLY ASPECT. Situated in this pleasant semi-rural location within easy access of both Wickford and Billericay is this development opportunity. With SOUTH/WESTERLY plot benefitting from planning consent for a 3 bedroom detached bungalow. The plans include Lounge, Kitchen/Diner, 3 Bedroom and Bathroom. Plans are available upon request or can be viewed at Basildon Planning Portal PLANNING 23/01099/FULL .
Full Details
PLANNING FOR 3 BED DETACHED BUNGALOW
SEMI-RURAL LOCATION
OPEN ASPECT TO REAR
SOUTHERLY REAR GARDEN
STRUCTURAL DRAWINGS & SOIL TEST RESULTS AVAILABL
WE UNDERSTAND FINAL STRUCTURAL DRAWINGS AND SOIL INVESTIGATION RESULTS ARE AVAILABLE BY SEPARATE NEGOTIATION VIA MUNDAY AND CRAMER TO SPEED THE CONSTRUCTION PROCESS.
WALKING DISTANCE OF LOCAL SHOP
EASY ACCESS OF BILLERICAY AND WICKFORD
PLANNING 23/01099/FULL





















